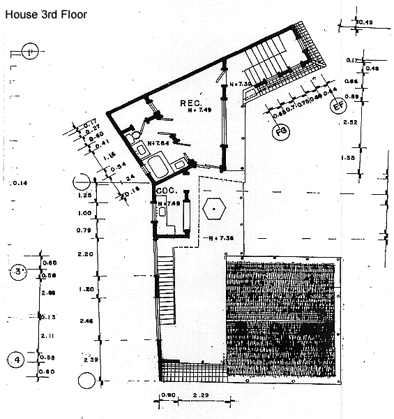
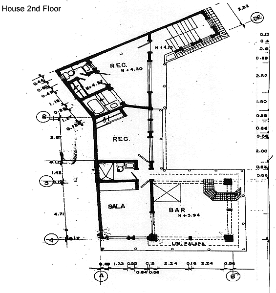
Home >> Jalisco >> Barra de Navidad >> Casa de la Parota >> Floor Plans

Floor Plans

Casa de la Parota

Return to Casa de la Parota
Main Index
Barra de Navidad
Casa de la Parota
More Photos
Regional Map
Telephone Numbers
Real Estate
Visitors' Comments
AboutHomeSearch

Return to Casa de la Parota



| Top of page | Main index | Search | What's new |