The Tom & Nancy "Home" Page

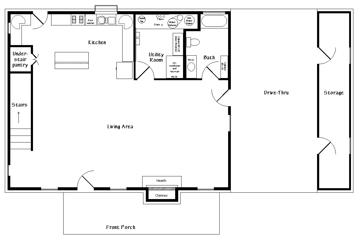
Downstairs Floor Plan

Drawn by: Tom Penick
The Tom & Nancy "Home" Page - Index
Upstairs Floor Plan
The slab
Framing
Masonry
Roofing
Painting
Electrical
Fireplace
Air Conditioning